土地 府中市広谷町
所在地
府中市広谷町
1,019万円
65.63坪
★建築条件なし ★前面道路6mの開発道路です ★幹線道路から道を一本入りますので静かな環境で、道幅も6m以上の道が主となります。(道路の区間は4mが約60m、6m以上が260m。グーグルマップ調べ)
・業務スーパーエブリイ府中店まで966m
・ローソン府中高木まで416m
・セブンイレブン備後府中国府店まで907m
・すき家486号備後府中店:966m
・ウォンツ府中店:565m
・府中市立旭小学校:992m
・地方独立行政法人府中市病院機構府中市民病院:933m
・府中高木郵便局:241m
物件概要
- 交通
-
JR福塩線 まで 徒歩5分
- 接道状況
- 東側 公道
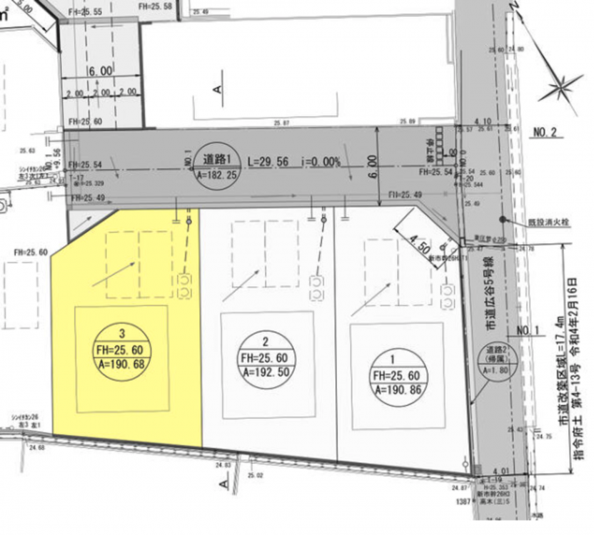
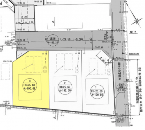
- 土地面積
- 216.97㎡ (65.63坪)
- 建ぺい率
- 60%
- 容積率
- 200%
- 土地権利
- 所有権
- セットバック
- 無し
- 小学校区
- 旭 (992m)
- 中学校区
- 第一
- 私道負担
- 建築条件
- ー
- 地目
- 現況
- 更地
- 引渡時期
- 上水道
- 下水道
- ガス
- 都市計画
- 市街化区域
- 用途地域
- 準工業
- 設備・条件
- 備考
-
法令等制限:大規模集客施設制限地区・建築基準法22条地域
区画番号:区画3
工事完了予定日:2023年2月
開発許可等番号:指令東部建 第2001号 令和4年7月5日
■浄化槽地域です
水道分担金別途必要。面積は計画段階の図面によるため、造成後に実測。私道持分あり。 - 取引態様
- 仲介


