土地 福山市川口町1
所在地
福山市川口町1
1,295万円
39.24坪
・建築条件なし。川口小学校徒歩3分。
・買い物施設が充実した、好立地物件です。
・セブンイレブン福山東川口4丁目店まで徒歩5分(約350m)
・スマイルキッチン多治米店まで徒歩6分(約500m)
・ドラッグストアコスモス多治米店まで徒歩6分(約420m)
・医療法人社団大仁会 大石病院まで徒歩3分(約260m)
・福山川口郵便局まで徒歩5分(約400m)
物件概要
- 交通
-
JR山陽本線
中国バス「東川口四丁目」歩5分
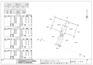
- 接道状況
- 南側4m 間口約2m
- 土地面積
- 実測 129.74㎡ (39.24坪)
- 建ぺい率
- 60%
- 容積率
- 160%
- 土地権利
- 所有権
- セットバック
- 無し
- 小学校区
- 川口 (250m)
- 中学校区
- 城南 (2200m)
- 私道負担
- 建築条件
- なし
- 地目
- 宅地
- 現況
- 更地
- 引渡時期
- 即時
- 上水道
- 下水道
- ガス
- 都市計画
- 用途地域
- 1種住居
- 設備・条件
- 公営水道、本下水
- 備考
- 取引態様
- 仲介


