中古一戸建て 府中市府中町
所在地
府中市府中町
1,598万円
38.73坪
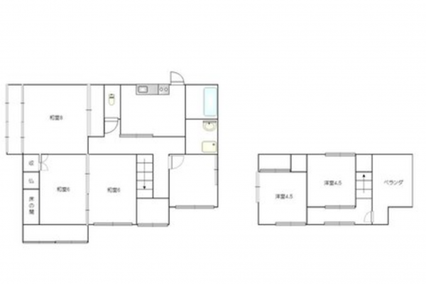
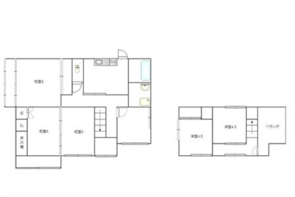
6DK
★駐車3台以上可 ★ 土地100坪以上 ★2階建 ★ シャッター車庫 ★高台に立地
物件概要
- 交通
-
JR福塩線 まで 徒歩22分
- 土地面積
- 356.78㎡ (107.92坪)
- 建物面積
- 128.06㎡ (38.73坪)
- 築年数
-
1970年
(昭和45)
3月
築56年 - 建ぺい率
- 50%
- 容積率
- 100%
- 土地権利
- 所有権
- 構造および階数
- 木造 地上2階建
- 小学校区
- 府中学園 (960m)
- 中学校区
- 府中学園 (960m)
- 私道負担
- 地目
- 宅地
- 現況
- 引渡時期
- 相談
- 駐車場
- 普通3台
- 上水道
- 公共
- 下水道
- 公共
- ガス
- 都市計画
- 市街化区域
- 用途地域
- 1種低層
- 設備・条件
- 備考
- 駐車場4台
- 取引態様
- 仲介


