新築一戸建て 福山市山手町5丁目
所在地
福山市山手町5丁目
2,180万円
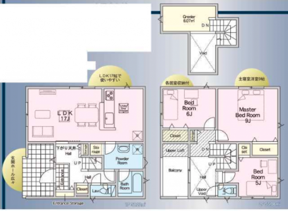
31.85坪
3LDK
★耐震+制震の家 ★1号棟 ★住宅性能評価取得物件 ★山手小学校まで徒歩12分 ★オール電化
福山市立山手小学校:徒歩12分(889m)
・ 中学校福山市立城西中学校:徒歩24分(1884m)
・ スーパーハローズ山手店:徒歩9分(669m)
・ スーパー生鮮食品オンリーワン 山手店:徒歩8分(601m)
・ドラッグストアザグザグ山手店:徒歩7分(534m)
・コンビニセブンイレブン 福山山手店:徒歩9分(649m)
・ドラッグストアディスカウントドラッグ コスモス 山手店:徒歩8分(596m)
・ 銀行しまなみ信用金庫山手支店:徒歩7分(546m) 駅備後本庄:徒歩15分(1176m)
物件概要
- 交通
-
福塩線 まで 徒歩13分
- 土地面積
- 公簿 165.16㎡ (49.96坪)
- 建物面積
- 105.30㎡ (31.85坪)
- 築年数
- 2025年 (令和7) 4月 完成予定
- 建ぺい率
- 60%
- 容積率
- 200%
- 土地権利
- 所有権
- 構造および階数
- 地上2階建
- 小学校区
- 山手 (889m)
- 中学校区
- 城西 (1884m)
- 私道負担
- 地目
- 宅地
- 現況
- 建築中
- 引渡時期
- 相談
- 駐車場
- 普通2台
- 上水道
- 公共
- 下水道
- 公共
- ガス
- 都市計画
- 市街化区域
- 用途地域
- 準工業
- 建築確認番号
- 第R06SHC127579号
- 設備・条件
- オール電化、システムキッチン、カウンターキッチン、IHクッキングヒーター、浴室乾燥機、複層ガラス、1BOX駐車可、追い焚き、駐車場2台分、床下収納
- 備考
-
引渡可能時期契約後1ヶ月
★子育てグリーン住宅40万円補助対象物件♪
交付の対象となるには諸条件があります
申請には期限があります
申請書類は期間内に受理される必要があります
国の予算状況により期限前に締め切る場合があります - 取引態様
- 仲介


