新築一戸建て 福山市南本庄2
所在地
福山市南本庄2
7,230万円
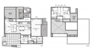
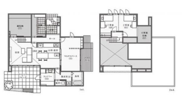
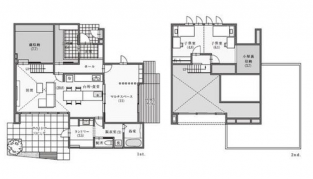
30.79坪
3LDK
・JR山陽本線 「福山」駅まで徒歩15分
・ファミリーマート 福山西町三丁目店まで徒歩11分(約800m)
・エブリイ本庄店まで徒歩3分(約230m)
・スーパードラッグひまわり本庄店まで徒歩3分(約220m)
・寺岡整形外科病院まで徒歩10分(約700m)
・福山本庄郵便局まで徒歩7分(約500m)
物件概要
- 交通
-
JR山陽本線 まで 徒歩15分
- 接道状況
-
東側 公道8.5m 間口約14.5m
北側 公道4m 間口約13.5m - 土地面積
- 公簿 228.13㎡ (69.00坪)
- 建物面積
- 101.81㎡ (30.79坪)
- 築年数
-
2024年
(令和6)
8月
築1年 - 建ぺい率
- 60%
- 容積率
- 200%
- 土地権利
- 所有権
- 構造および階数
- 木造 地上1階建
- 小学校区
- 西 (550m)
- 中学校区
- 城北 (1600m)
- 私道負担
- なし
- 地目
- 宅地
- 現況
- 完成済
- 引渡時期
- 相談
- 駐車場
- 上水道
- 公共
- 下水道
- 公共
- ガス
- 都市計画
- 市街化区域
- 用途地域
- 準工業
- 建築確認番号
- 第ERI-24007849号
- 設備・条件
- システムキッチン、IHクッキングヒーター、食器洗浄乾燥機、シャンプードレッサー、浴室乾燥機、モニタ付インターホン、洗浄便座、複層ガラス、追い焚き、駐車場2台分、駐車場3台分、床下収納、浴室暖房、シャワー付洗面化粧台、浄水器、2WAYキッチン、Ⅱ型キッチン、グリル、太陽光発電システム、EV車充電設備、エアコン2台以上、クローゼット、ディンプルキー、省エネ給湯器、全居室フローリング、室内物干し、クッションフロア、上水道、下水道、電気、庭、人感センサー付照明、ダウンライト、間接照明、照明器具、火災警報器(報知機)、Low-E ガラス
- 備考
- 施工会社:ミサワホーム中国株式会社・私道負担:なし・大空間×大開口×高天井を実現した新しい『平屋』の住まい。「蔵」収納やスキップフロアを活用した2層スタイルの平屋で、あなたらしいライフスタイルを自由にお愉しみいただけます♪・【オープンハウス/モデルハウス】~2026/6/30(09:00~18:00)【予約制】ご見学ご希望の方はご予約の上ご来場ください・未入居物件・仲介手数料:不要
- 取引態様
- 仲介


