新築一戸建て 福山市西深津町6丁目
所在地
福山市西深津町6丁目
3,750万円
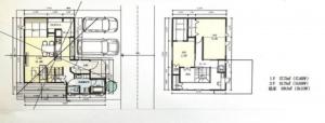
33.12坪
3LDK
徒歩圏内にスーパー・コンビニなどがあり生活利便性が良いです。
・ローソン 福山西深津店まで徒歩8分 (約600m)
・(有)安原商店まで徒歩11分 (約750m)
・スーパードラッグひまわり三吉店まで徒歩14分 (約1000m)
・森近内科まで徒歩8分 (約550m)
・福山三吉郵便局まで徒歩9分 (約600m)
物件概要
- 交通
-
JR山陽本線 まで 徒歩32分
- 接道状況
- 東側 私道4m 間口約10m
- 土地面積
- 公簿 132.71㎡ (40.14坪)
- 建物面積
- 109.50㎡ (33.12坪)
- 築年数
- 2026年 (令和8) 3月
- 建ぺい率
- 60%
- 容積率
- 200%
- 土地権利
- 所有権
- 構造および階数
- 木造 地上2階建
- 小学校区
- 西深津 (600m)
- 中学校区
- 中央 (120m)
- 私道負担
- あり 有 246
- 地目
- 宅地
- 現況
- 完成済
- 引渡時期
- 相談
- 駐車場
- 有
- 上水道
- 下水道
- ガス
- 都市計画
- 市街化区域
- 用途地域
- 1種住居
- 設備・条件
- 駐車場2台分
- 備考
- 取引態様
- 仲介


