中古一戸建て 福山市駅家町大字近田
所在地
福山市駅家町大字近田
800万円
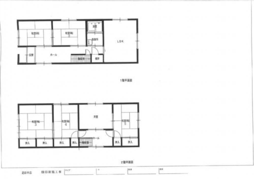
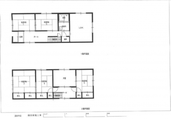
42.35坪
6LDK
・JR福塩線「近田」駅まで徒歩12分
・ローソン 福山駅家町近田店まで徒歩3分(約210m)
・ハローズ 駅家モール店まで徒歩8分(550約m)
・ザグザグ 駅家店まで徒歩8分(約550m)
・みよし内科まで徒歩7分(約500m)
・宜山簡易郵便局まで徒歩17分(約1200m)
物件概要
- 交通
-
JR福塩線 まで 徒歩12分
- 接道状況
- 北側 公道2.5m 間口約7m
- 土地面積
- 公簿 145.60㎡ (44.04坪)
- 建物面積
- 140.00㎡ (42.35坪)
- 築年数
-
1986年
(昭和61)
8月
築39年 - 建ぺい率
- 60%
- 容積率
- 200%
- 土地権利
- 所有権
- 構造および階数
- 木造 地上2階建
- 小学校区
- 駅家西 (850m)
- 中学校区
- 駅家 (2200m)
- 私道負担
- なし 無
- 地目
- 宅地
- 現況
- 居住中
- 引渡時期
- 相談
- 駐車場
- 有
- 上水道
- 下水道
- ガス
- 都市計画
- 市街化区域
- 用途地域
- 1種住居
- 設備・条件
- オール電化、システムキッチン、IHクッキングヒーター、食器洗浄乾燥機、シャンプードレッサー、モニタ付インターホン、追い焚き、駐車場2台分、プロパンガス、電気、上水道、下水道、浄水器、給湯、洗濯機置場、エアコン、フローリング、照明器具付き、インターネット対応、5年以内に水回り設備交換、5年以内に内装リフォーム
- 備考
- 取引態様
- 仲介


