新築一戸建て 福山市新市町大字宮内
所在地
福山市新市町大字宮内
2,880万円
29.55坪
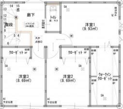
3LDK
☆閑静な住宅地に位置する住環境と利便性のバランスの取れた魅力的な場所に位置しています。安全でクリーンなオール電化住宅です!
ヤマザキショップ(Yショップ)新市藤原店まで徒歩17分(約1300m)
なかやま牧場ハート新市店まで徒歩6分(約450m)
スーパードラッグひまわり新市店まで徒歩10分(約700m)
三島医院まで徒歩4分(約270m)
網引郵便局まで徒歩6分(約450m)
物件概要
- 交通
-
福塩線 「新市」駅 徒歩24分
- 接道状況
- 北側 私道6m
- 土地面積
- 171.39㎡ (51.84坪)
- 建物面積
- 97.71㎡ (29.55坪)
- 築年数
- 2026年 (令和8) 7月 完成予定
- 建ぺい率
- 60%
- 容積率
- 200%
- 土地権利
- 所有権
- 構造および階数
- 木造 地上2階建
- 小学校区
- 新市 (1200m)
- 中学校区
- 新市中央 (900m)
- 私道負担
- 地目
- 宅地
- 現況
- 引渡時期
- 駐車場
- 有
- 上水道
- 下水道
- ガス
- 都市計画
- 市街化区域
- 用途地域
- 1種住居
- 建築確認番号
- 福指令第514
- 設備・条件
- 側溝、システムキッチン、IHクッキングヒーター、食器洗浄乾燥機、シャンプードレッサー、浴室乾燥機、モニタ付インターホン、洗浄便座、ウォークインクローゼット、追い焚き、床下収納、トイレ2箇所、エアコン/収納スペース/プロパンガス/照明器具/電気/上水道/下水道
- 備考
- 取引態様
- 仲介


