マンション サーパス南蔵王
所在地
福山市南蔵王町4丁目
2,980万円
90.50m²
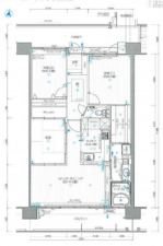
3LDK
・「フレスタ 蔵王店」まで210m(徒歩3分)
・「ローソン 福山東インター店」まで820m(徒歩11分)
・「ニトリ 福山店」まで960m(徒歩12分)
・「福山深津郵便局」まで560m(徒歩7分)
・「井上病院」まで490m(徒歩7分)
・「ウエルシア福山東深津店」まで470m(徒歩6分)
物件概要
- 交通
-
JR山陽本線 まで 徒歩17分
東福山駅
- 専有面積
- 壁芯 90.50㎡
- バルコニー
-
13.87㎡
(南側)
- 所在階/階数
- 14階/14階
- 築年数
-
2006年
(平成18)
1月
築20年 - 建ぺい率
- 60%
- 容積率
- 200%
- 土地権利
- 所有権
- 構造および階数
- SRC(鉄骨鉄筋コンクリート) 造 地上14階建
- 総戸数
- 55戸
- 小学校区
- 蔵王 (1700m)
- 中学校区
- 城東 (230m)
- 地目
- 現況
- 空
- 引渡時期
- 相談
- 駐車場
- 空有
- 駐車場月額
- 4,500円/月
- 管理形態
- 全部委託
- 管理方式
- 管理人日勤
- 管理会社
- 管理費
- 5,500円
- 修繕積立費
- 15,400円
- 上水道
- 下水道
- ガス
- 都市ガス
- 都市計画
- 用途地域
- 2種住居
- 設備・条件
- システムキッチン、カウンターキッチン、IHクッキングヒーター、食器洗浄乾燥機、浴室乾燥機、洗浄便座、ウォークインクローゼット、追い焚き、オートロック、ペット可、エレベーター、上水道/下水道/バス・トイレ別/シャワー/洗面台/室内洗濯機置場/エアコン/BS端子/CS/フローリング/照明器具付き/インターネット対応/収納スペース/宅配ボックス/駐輪場/外観タイル張り/モニター付きオートロック/最上階
- 備考
-
【大型リフォーム箇所(新品への交換工事)】
2025年(1月頃~):ユニットバス(工事費150万円(消費税込み))
管理費等:インターネット異容量 2,835円、専有部警備料等 488円 - 取引態様
- 仲介


